PROJET REO
ARCHITECTURE D’INTERIEUR

Prestation architecture d’intérieur

Pour ce projet j’ai accompagné les clients pour la rénovation d’une maison des années fin 70 . Il a fallut repenser la circulation et la distribution des espaces.

Pour cette prestation nous sommes partis sur la phase 1 de la prestation en architecture d’intérieur.

Plan état des lieux prestation architecture d'intérieur phase 1

AVANT

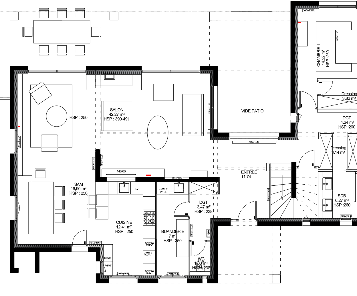
Plan projet prestation architecture d'intérieur phase 1

APRES